Zum Hauptinhalt springen Zur Suche springen Zur Hauptnavigation springen
Service und Beratung stehen bei uns an höchster Stelle

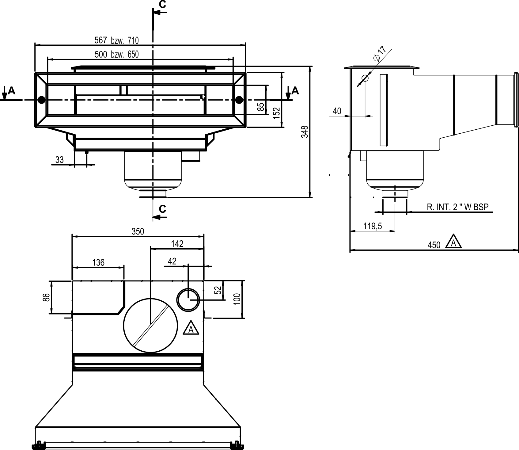
Oberflächenabsauger Slim 500 V4A

Produktinformationen "Oberflächenabsauger Slim 500 V4A"

  • Skimmeröffnung 500 x 85 mm
  • Skimmerwehr aus Edelstahl
  • Skimmeranschluss mit Innengewinde 2"
  • Überlauf mit Klebeanschluss DA 50 nach unten
  • komplett mit Foliendichtflansch und polierter Sichtblende als Abdeckung für die Flanschschrauben.

(Mit Vorrichtung für den Einbau des mech. Niveaureglers 1473453)

Eigenschaften "Oberflächenabsauger Slim 500 V4A"
Produktgalerie überspringen

Zubehörartikel

Skimmerkorb V4A
Astral Skimmerkorb Edelstahl V4A, passend für diverse Oberflächensauger wie 104280, 10428010, 10428011, 1473501 Durchmesser oben: ca. 152 mm Durchmesser unten: ca. 143 mm Höhe: ca. 82 mm Passt zu folgenden Astral-Edelstahl-Skimmern: 0025416694V-277/0616693M00709M00934563135631672743727447350173502

99,90 €*
Wasserstandsregler, mechanisch Astral Slim
Astral Niveauregler mechanisch für alle V4A Slim Skimmer. Anschluss 3/8"

67,80 €*